Wnętrza tworzące tło dla życia w harmonii
Informacje | Galeria | Plan
Klient: Prywatny
Rok: 2023
Lokalizacja: Wrocław
Powierzchnia: 580 m2
Autorzy: Adam Stafiniak, Zuzanna Róg, Weronika Bednarska, Anna Głodek
Status: W trakcie realizacji
Funkcja: Mieszkalna
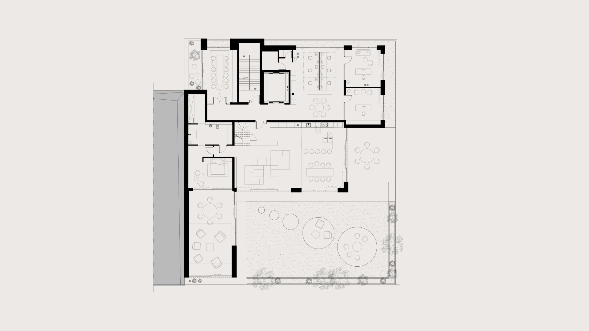
Nasze zadanie polegało na stworzeniu harmonijnej przestrzeni do mieszkania na dachu budynku. Wyzwanie to było trudne z przestrzenno-konstrukcyjnych powodów. Przestrzeń dzienną podzieliliśmy na część kuchni i jadalni (wysoką) i salon (niską). Taka dyspozycja ma za zadanie strefować wrażenie intymności. Strefa wysoka otwarta na tarasy mieści dzienne aktywności użytkowników. Strefa niska, poprzez przytulność przestrzeni gromadzi bardziej intymne aktywności wieczorne.
Stosowane materiały harmonijnie dobrane tworzą tło dla życia. Brak mocnych kolorów, naturalne faktury materiałów, jednolita paleta kolorów naturalnego beżu i szarości tworzą przestrzeń 'spokojną’ odpowiednią dla odpoczynku.
Stosowane materiały harmonijnie dobrane tworzą tło dla życia. Brak mocnych kolorów, naturalne faktury materiałów, jednolita paleta kolorów naturalnego beżu i szarości tworzą przestrzeń 'spokojną’ odpowiednią dla odpoczynku.


Informacje | Galeria | Plan
Klient: Prywatny
Rok: 2023
Lokalizacja: Wrocław
Powierzchnia: 580 m2
Autorzy: Adam Stafiniak, Zuzanna Róg, Weronika Bednarska, Anna Głodek
Status: W trakcie realizcaji
Funkcja: Mieszkalna
Nasze zadanie polegało na stworzeniu harmonijnej przestrzeni do mieszkania na dachu budynku. Wyzwanie to było trudne z przestrzenno-konstrukcyjnych powodów. Przestrzeń dzienną podzieliliśmy na część kuchni i jadalni (wysoką) i salon (niską). Taka dyspozycja ma za zadanie strefować wrażenie intymności. Strefa wysoka otwarta na tarasy mieści dzienne aktywności użytkowników. Strefa niska, poprzez przytulność przestrzeni gromadzi bardziej intymne aktywności wieczorne.
Stosowane materiały harmonijnie dobrane tworzą tło dla życia. Brak mocnych kolorów, naturalne faktury materiałów, jednolita paleta kolorów naturalnego beżu i szarości tworzą przestrzeń 'spokojną’ odpowiednią dla odpoczynku.
ROST
ul. Gdańska 28/9, 50-344 Wrocław
NIP 8992797387
Numer tel +48 509 046 247
e-mail biuro@rost.studio